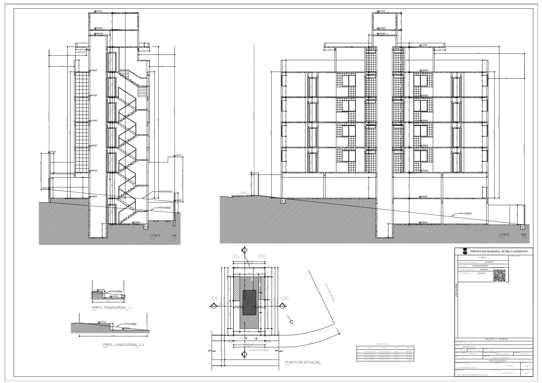
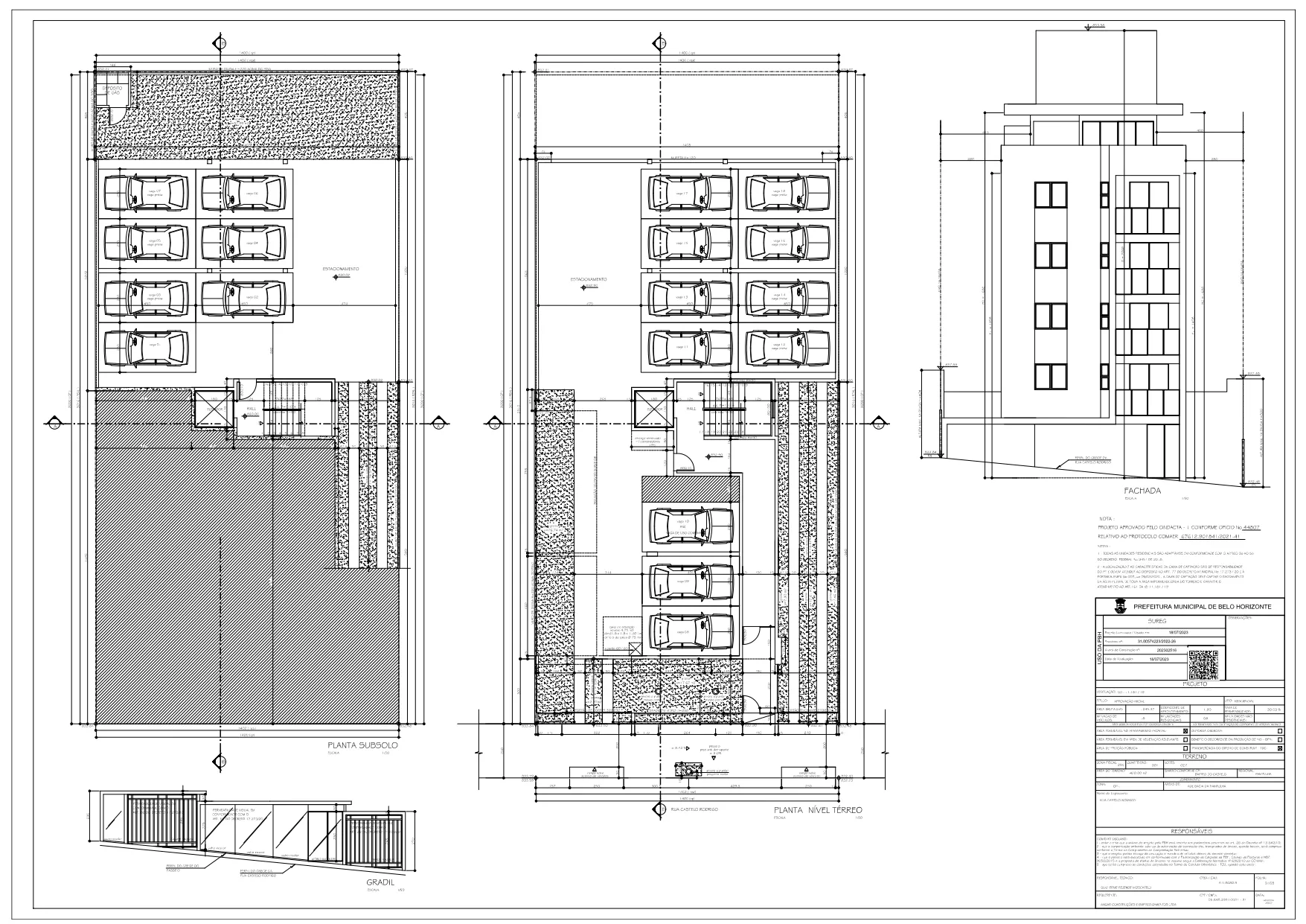
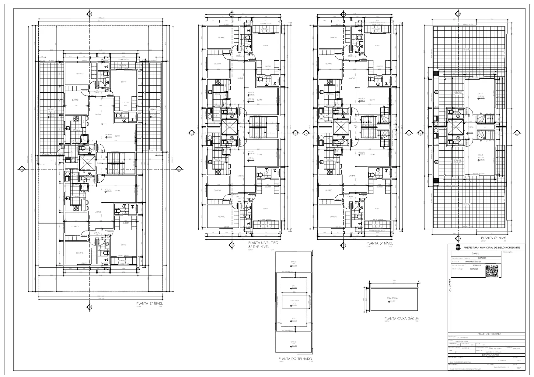
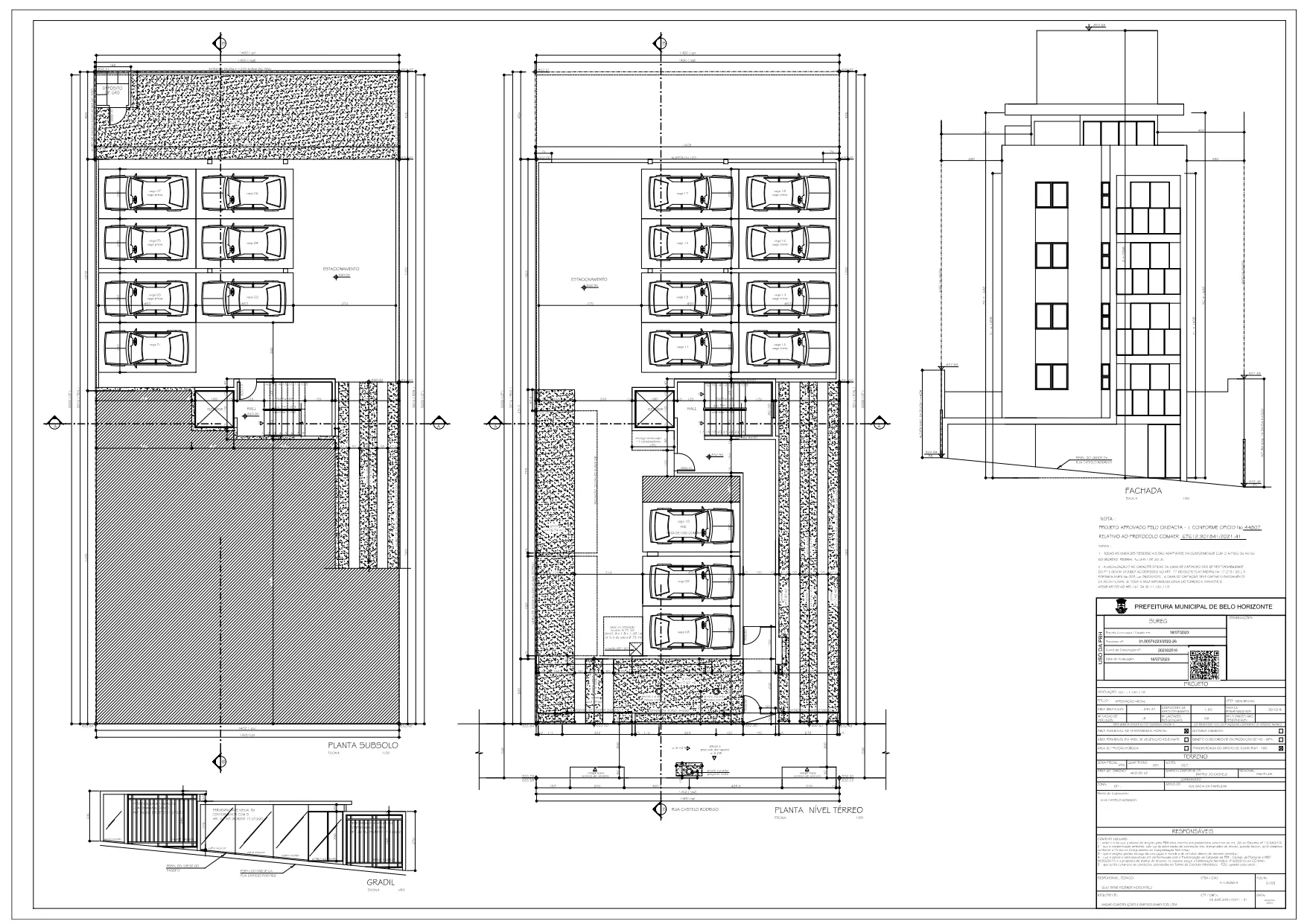
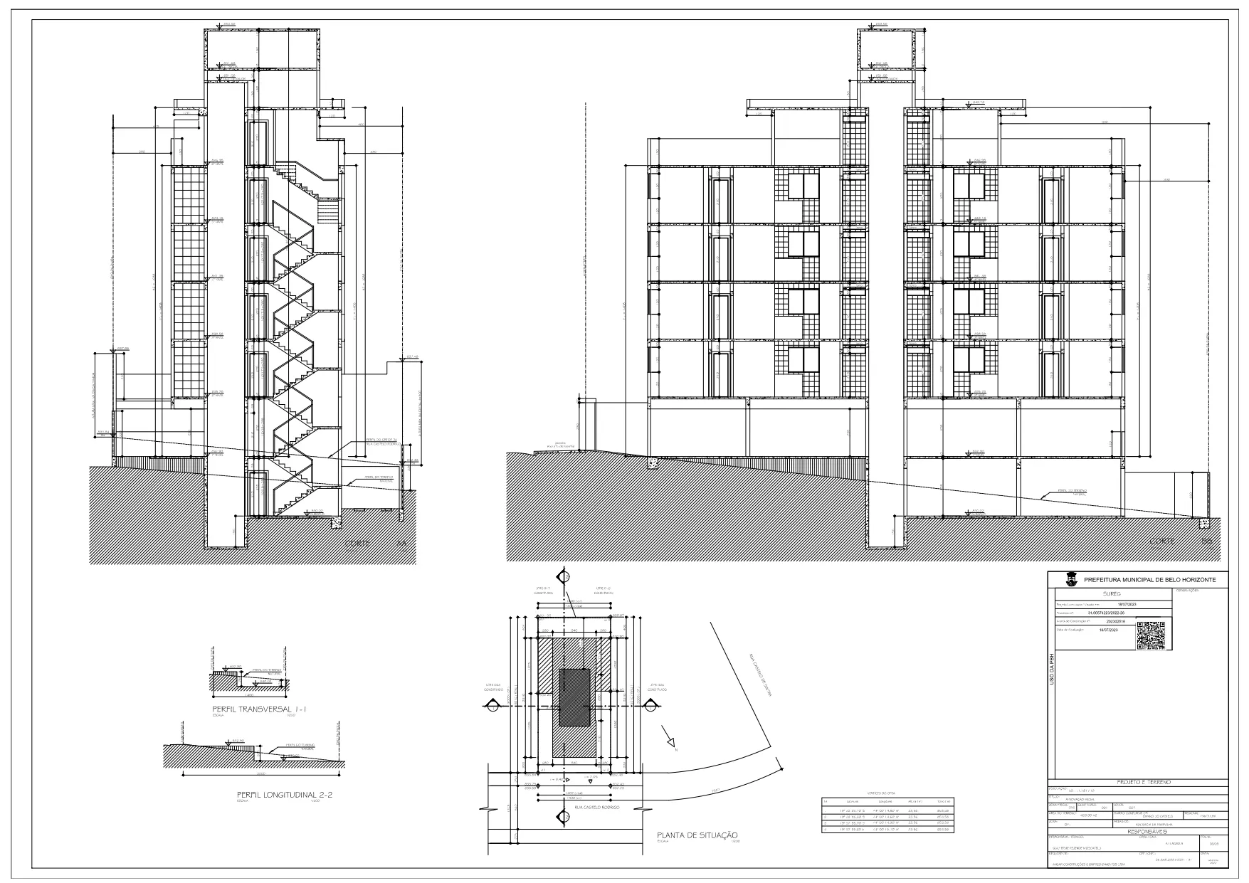
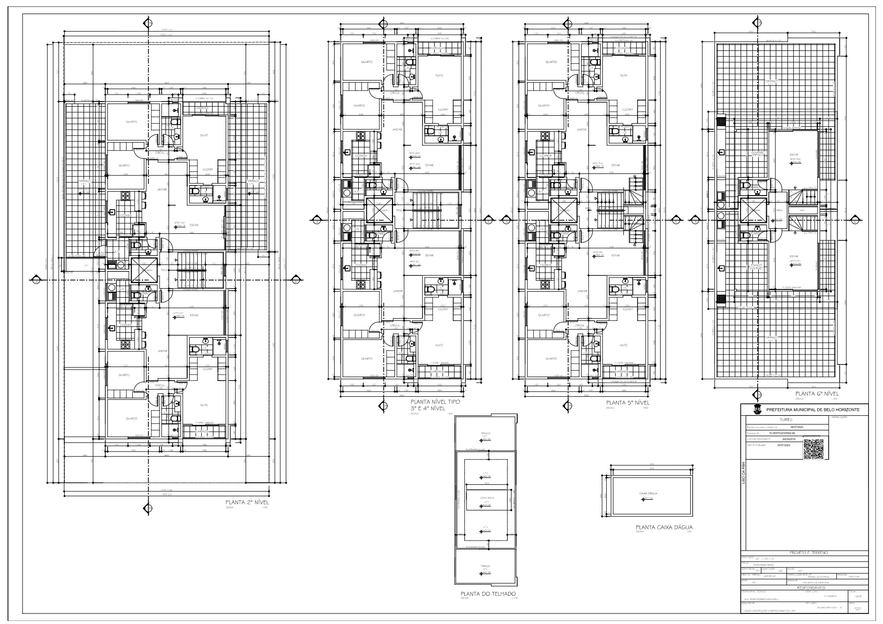
Apresentamos uma excelente oportunidade de investimento no bairro Castelo, uma das regiões mais valorizadas e bem estruturadas de Belo Horizonte. Em um lote de 420 m², este projeto residencial já está aprovado segundo a legislação anterior, com outorga comprada, o que garante maior aproveitamento construtivo e potencial de valorização. Com 1.245,37 m² de área construída distribuídos em um único bloco de 7 andares, o empreendimento contempla 8 unidades residenciais de 3 quartos, 17 vagas para veículos leves e 1 vaga PCD, além de infraestrutura completa com elevador, captação de água pluvial e área permeável planejada. Situado em uma localização estratégica, próximo a escolas, comércios, vias de acesso e áreas verdes, este projeto combina modernidade, sustentabilidade e segurança jurídica, sendo ideal tanto para construtores quanto para investidores que buscam um retorno sólido e diferenciado em Belo Horizonte.
Elevador: 1 elevador com acesso a todos os andares
✅ Projeto já regularizado
✅ Outorga comprada
✅ Localização valorizada em BH
✅ Pronto para construção
✅ Alto potencial de retorno sobre investimento
Compare listings
Comparar